Dziennik Gazeta Prawana logo

Prezydenckie przetargi ujawniają dużo. Jak wskazówki dla terrorystów?

8 października 2012, 13:22
Ten tekst przeczytasz w 2 minuty
Pałacyk prezydencki w Wiśle
Pałacyk prezydencki w Wiśle/Newspix
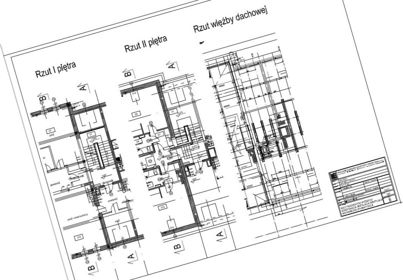
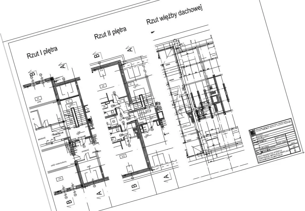
Rzuty wszystkich pięter, plany instalacji, do tego widoki elewacji i szczegółowe dane techniczne. Wszystko to znalazło się w dokumentach upublicznionych przez kancelarię prezydenta przy okazji przetargu na przebudowę rezydencji w Wiśle. Gen. Roman Polko nie ma wątpliwości: To zachęta dla terrorystów.

Kancelaria prezydenta ogłosiła przetargi na remonty prezydenckich budynków, m.in. Pałacu Prezydenckiego, Belwederu, a także rezydencki w Juracie i w Wiśle. I właśnie ta ostatnia przebudowa wzbudziła sporo kontrowersji - donosi tvp.info.

W internecie pojawił się bowiem - poza specyfikacją dotyczącą wymagań przetargowych - szczegółowy plan willi w Wiśle (dokładniej: w Gajówce). Widać na nim przebieg instalacji wodno-kanalizacyjnej, grzewczej, a także wentylację oraz rzuty wszystkich pięter. Poza tym widoki elewacji i opis techniczny budynku, a nawet mapę ukształtowania terenu wokół rezydencji. Widać na niej wszelkie nierówności, drzewa, a nawet kosze na śmieci.

Dziennik.pl na stronach prezydenckiej kancelarii znalazł podobne, choć już nie tak szczegółowe plany rezydencji w Juracie, także przeznaczonej do remontu.

ostrzega w rozmowie z tvp.info gen. Roman Polko, były szef GROM.

4125729-plany-rezydencji-prezydenckiej.jpg

Jednak kancelaria prezydenta tłumaczy, że zamieszczenia tak szczegółowej dokumentacji wymaga prawo, a konkretnie Ustawa o zamówieniach publicznych. - wyjaśniło biuro prasowe kancelarii. Poza tym urzędnicy podkreślają, że w rezydencji w Gajówce nocować mogą turyści, gdyż jest to obiekt ogólnodostępny. Serwis tvp.info ustalił jednak, że noce spędzają tu również goście prezydenta, obiekt jest wykorzystywany podczas ważnych imprez, np. podczas szczytu prezydentów Grupy Wyszehradzkiej w Wiśle w 2005 roku.

- komentuje w rozmowie z tvp.info Grzegorz Cieślak z Centrum Badań nad Terroryzmem Collegium Civitas. Sugeruje, że udostępnianie tak szczegółowych informacji powinno się odbywać jedynie na wniosek podmiotów zainteresowanych startem w przetargu, i to po zobowiązaniu ich do zachowania tajemnicy.

Copyright
Materiał chroniony prawem autorskim - wszelkie prawa zastrzeżone. Dalsze rozpowszechnianie artykułu za zgodą wydawcy INFOR PL S.A. Kup licencję
Źródło TVP Info
Zapisz się na newsletter
Świadczenia, emerytury, podatki, zmiany przepisów, newsy gospodarcze... To wszystko i wiele więcej znajdziesz w newsletterze Dziennik Radzi. Chcesz się dowiedzieć, kto może przejść na wcześniejszą emeryturę? A może jakie ulgi można odliczyć od podatku? Kto może otrzymać środki w ramach renty wdowiej? Zapisz się do naszego newslettera i bądź na bieżąco!

Zapisując się na newsletter wyrażasz zgodę na otrzymywanie treści reklam również podmiotów trzecich

Administratorem danych osobowych jest INFOR PL S.A. Dane są przetwarzane w celu wysyłki newslettera. Po więcej informacji kliknij tutaj